2014-06

家づくり

家具。

先日、妻が新宿のインテリアショップに行って、新調する家具を見てきました。 新調したい家具は主に、 ・4人用のダイニングテーブルセット(横1500×縦800mmぐらい) ・ダイニング用のペンダントライト ・テレビボード(横1500~1800...
家づくり

【第4回打合せ】新宿。

週1回の定例打合せ@新宿アイランドタワー。 この日はプランの確認と、確認申請書類のサインをしてきました。 まず、先週の打合せで修正を入れた間取りが上がってきたので、 それを元に、床、外壁、ドア、窓、屋根など…全てを一通り再確認しました。 ...
家づくり

設備仕様書。

そういえば、先日の打合せで頂いた設備仕様書。汐留で選んだものが載っていましたので、ご紹介します。小さいので分かりづらくて申し訳ないですが… 扉です。色味は床に合わせてチェリーで統一してあります。【一番下・左から2番目】階段・...
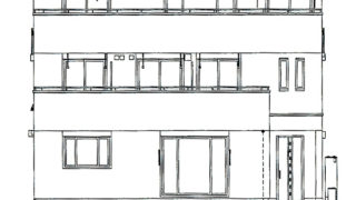
家づくり

外観。

間取りプランをご紹介したいと思っているのですが、現在修正中のため、今しばらくお待ちください。 ということで、先に外観をご紹介します。 先のブログに書いたとおり、1F親世帯、2F賃貸、3F子世帯になります。土地に対して目一杯建物を建てるため...
家づくり

太陽光。

契約前、各社から見積りをいただく時に、「太陽光は付けられますか?」と聞かれたのですが、あまり興味が無かったので、「付けません」と答えていました。 しかし今となっては、「1Fの親世帯もエネファームを入れることだし、せっかくだから付けようじゃな...
家づくり

【第3回打合せ】新宿。

この日は梅雨の晴れ間。 打合せの前に、新宿住宅展示場で建物を見学。 青い空に白いタイルがよく映えます。 新柄のキラテックタイルが見られると思っていたのですが、 LSスクエア・ルミナスホワイト、目地はグレーでした。 重厚感があって良い感...
家づくり

【第2回打合せ】午後の新宿。

午後は部屋にこもって打合せ。窓の確認作業を行います。 位置・サイズ・サッシの色・枠の有無など。一つひとつ確認していくと、もう少し大きく小さく、いらないなど意見が出てきます。 設計さん大変だ…頑張って。 私たち3Fのメインである南側リビング...
家づくり

【第2回打合せ】午前の新宿。

汐留に行った数日後。次は新宿アイランドタワーで打合せ。 この日も保育園の都合で10:30~15:30の短期決戦。ここは契約前に一度訪れていて、パナホームの構造などを説明いただいたことがありました。 まず向かった先は、エクステリアコーナー。外...
家づくり

【第1回打合せ】午後の汐留。

午後は、洗面まわりと照明の打合せ。とはいえ時間が足りず、照明は基本的な説明を聞いて終わり… まず、お風呂。1616サイズ(1坪)で特にこだわりは無かったのですが、標準仕様だと結構チープな感じ…特に壁選びが難しく、とりあえずホワイトで...
家づくり

【第1回打合せ】午前の汐留。

契約後、初めての打合せを行いに、パナソニックリビングショウルーム東京に行ってきました。 子どもが保育園に行っている都合上、10:30~15:30という短期決戦での打合せ。ここは写真が撮れないので、打合せで決めたものを紹介していきます。 はじ...
タイトルとURLをコピーしました